Jaren 30 woning
Jaren 30 woning ontwerpen
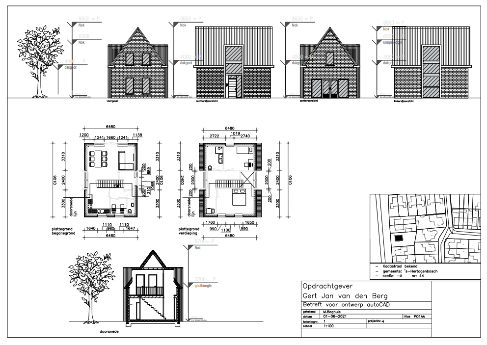
Dit is het laatste project van het eerste jaar, project 4. In dit project heb ik een jaren 30 woning ontworpen met een twist. In dit ontwerp heb ik de jaren 30 stijl gemengd met modern om de woning uniek te maken.



Matenplan
Doorsnede
Definitief ontwerp




