Tiny house
Tiny house ontwerpen
In dit project moet ik een tiny house ontwerpen. De doelen van dit project is om het zo duurzaam mogelijk te maken, daarom heb ik samen met andere een terrein gecreëerd waar wij allemaal ons tiny house op neer zetten. Op dit terrein staan een aantal gezamenlijke voorzieningen. In dit project werk ik voornamelijk uit op papier en in Revit 2022.
Locatie
Als groep zijn we onderzoek gaan doen voor een goede locatie voor onze tiny houses. We zijn voor een locatie gegaan in Zaltbommel. De locatie is omringt met groen en er is genoeg ruimte om 5 tiny houses neer te kunnen zetten.

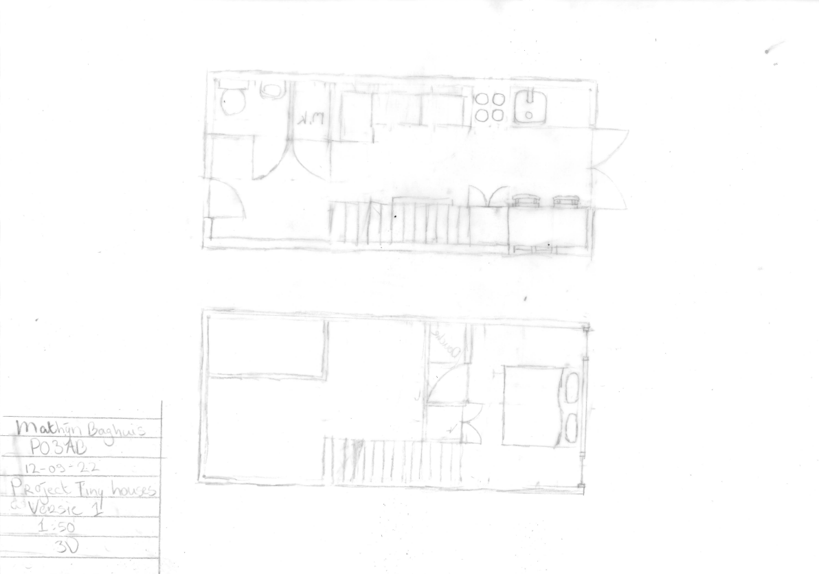
Ontwerp
Ik ben begonnen met het maken van wat schetsmodellen, hieruit heb ik degene uitgekozen die ik zelf het mooiste vond. Ik ben dit project verder gegaan met versie 3. Dit omdat deze naar mijn mening de meeste uitdaging had om uit te werken. Er zitten hoogte verschillen in en de vorm van het gebouw is niet één blok.
maquette
Als groep hebben we ons tiny house uitgewerkt in een maquette, hiermee kregen we een mooi beeld van hoe het het park eruit zou komen te zien. Ieder van ons heeft zijn eigen tiny house uitgewerkt.

Hoofddraagcontructie
Bij de hoofddraagconstructie ben ik eerst bodemonderzoek gaan doen, hieruit bleek dat de bodem van het gebied grotendeels kleigrond was. Hierdoor moest ik de tiny house op een palen fundering plaatsen. Het skelet van het tiny house word gemaakt van vuren hout.

Duurzaamheid
Een tiny house staat er om bekend dat ze zo duurzaam mogelijk zijn. Daarom ben ik opzoek gegaan naar duurzame materialen en installaties. Omdat we als park een aantal gezamelijke voorzieningen hebben heb ik deze opdracht deels samen onderzocht.





































