Restaurant Masterchef
Restaurant ontwerpen
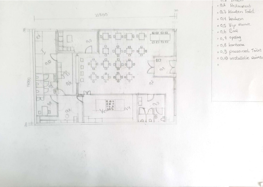
In dit project heb ik samen in groepsverband een restaurant ontworpen voor de chefkok Sergio Hermans. Bij dit ontwerp hebben de we bouwstijl aangehouden van Tadao Ando. De constructie van dit restaurant word een staalconstructie.
Het ontwerp
staalbouw
Met de getekende plattegrond is er een contructie tekening gemaakt om zo te kijken waar er kolommen, HEA’s en windverbanden nodig zijn.





