PROEVE 5
MAAKT WERKTEKENINGEN
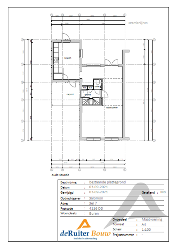
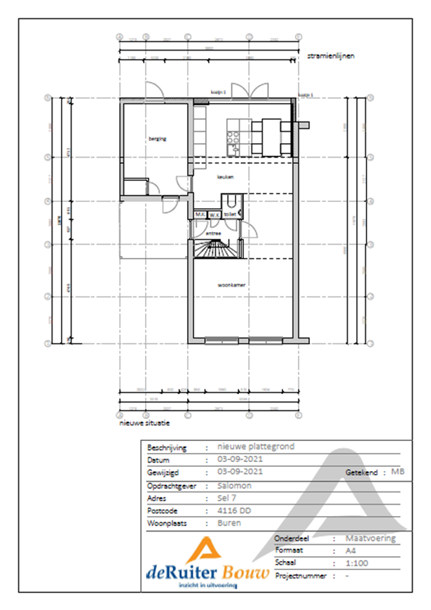
In deze opdracht moet ik werktekeningen maken van een lopend project van de Ruiter bouw. Ik heb er voor gekozen om de aanbouw van proeve 1 uit te werken tot werktekeningen.

Kozijnmerken
In de aanbouw komt er een kozijn te zitten, om deze te kunnen maken moet er een kozijnmerken gemaakt worden. Met deze tekening kan de kozijnenmaker het kozijn alvast maken zodat dat straks niet meer op de locatie zelf hoeft.
Leerjaar 3
trap tekening
Omdat de aanbouw opdracht werd overgenomen om verder aan te werken kreeg ik een nieuwe opdracht. Een klant moest een trap voor in de tuin hebben. Hiervoor heb ik twee modellen ontworpen zodat de klant zelf kan bepalen voor welk model hij of zij wilt gaan.




